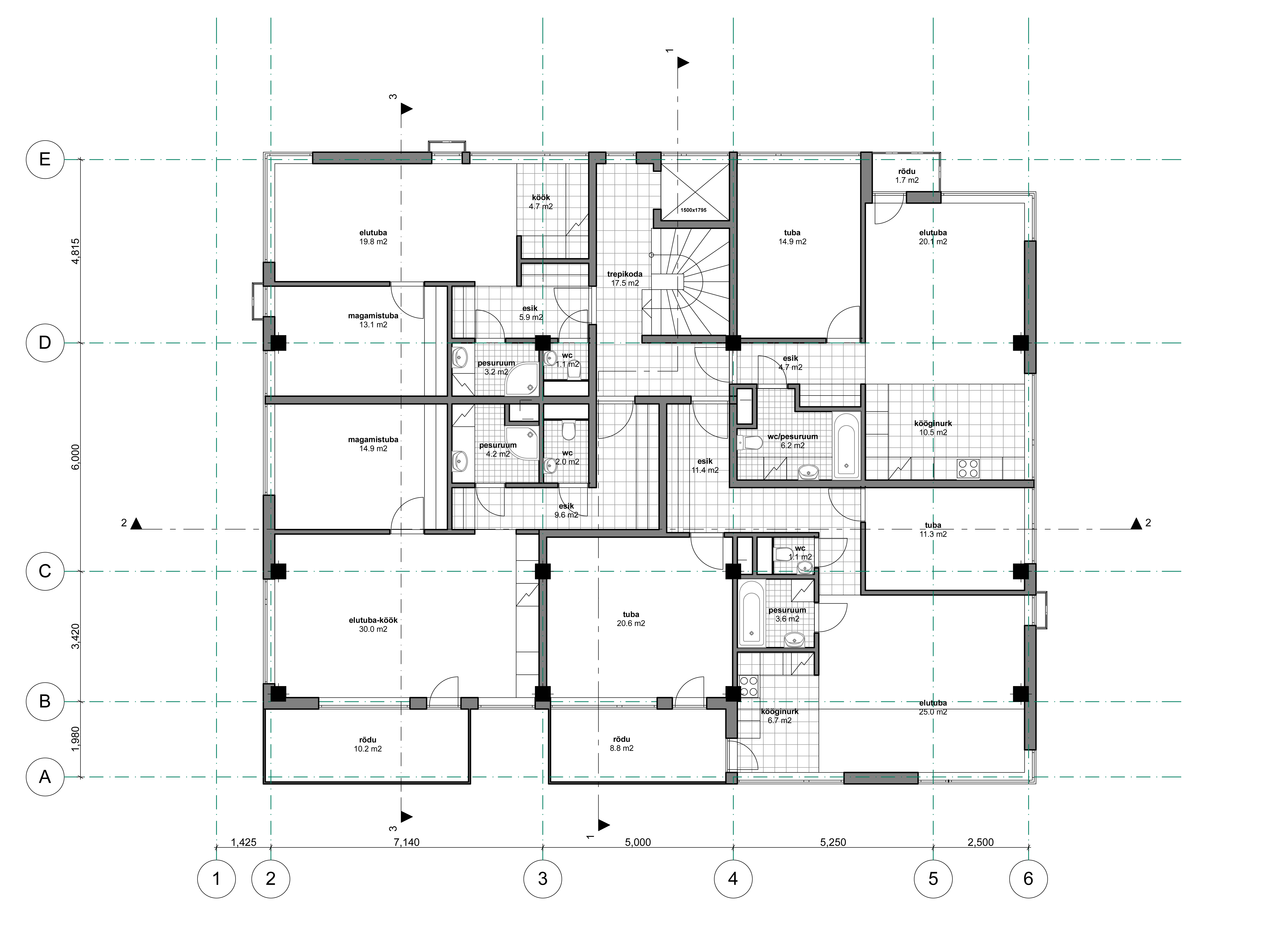
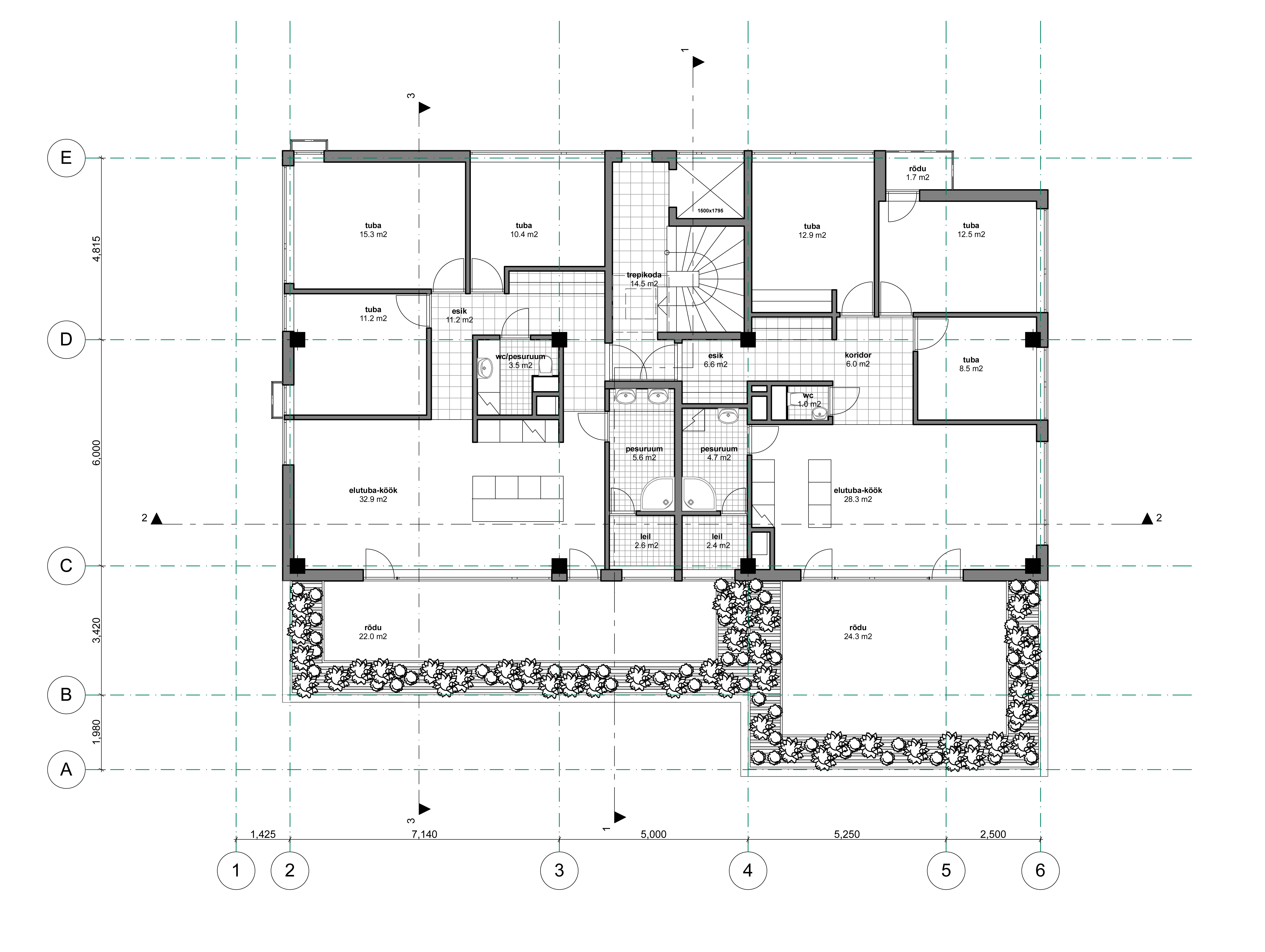
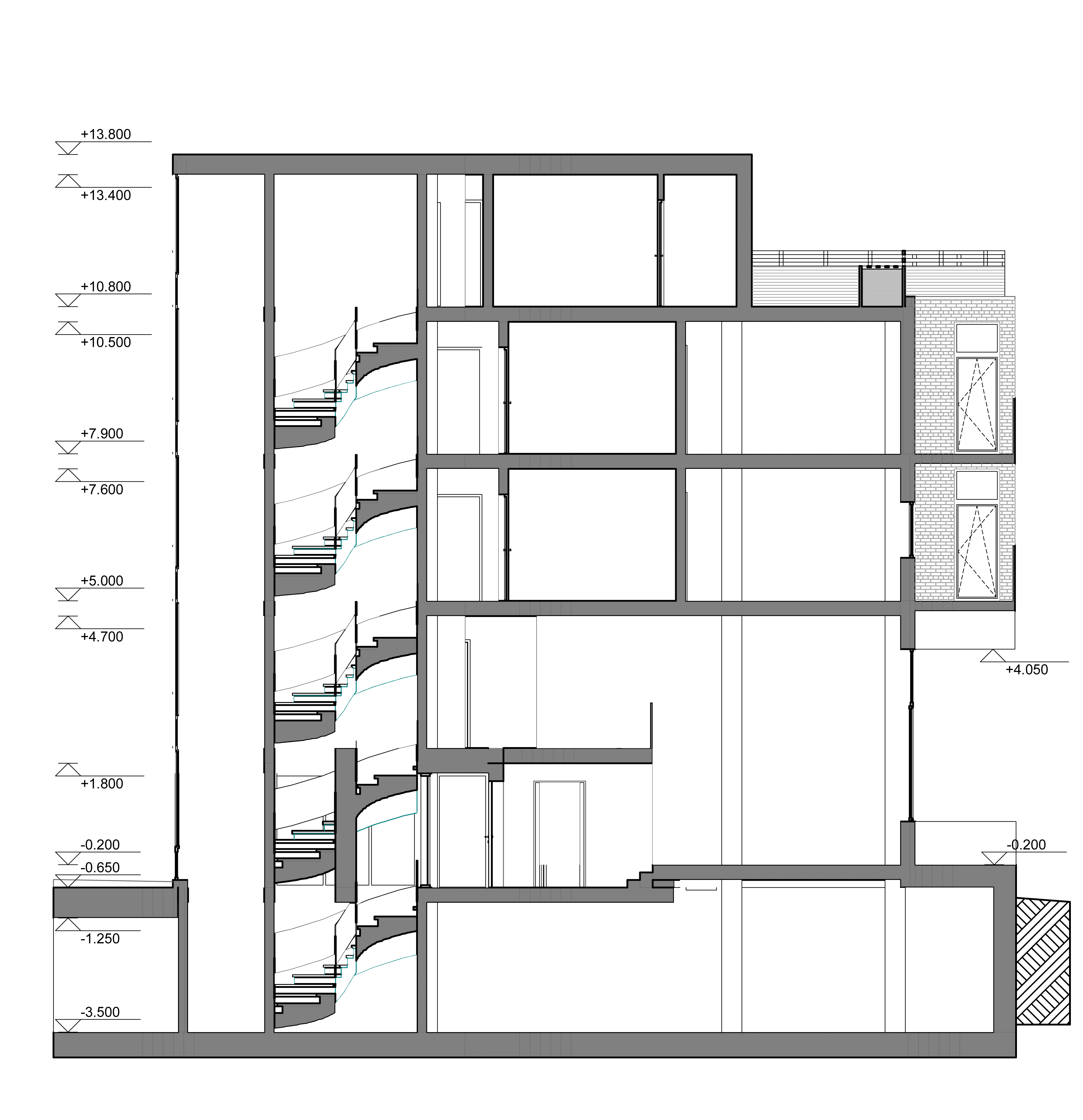
Apartment buildings at 5/7 Paldiski Road in Tallinn, 2014

Architects: Rein Murula, Karl Koosa, Aleksei Tihhonov, Kadri Kiho

Invited competition 2011, I preemia / I prize

Design: 2012
Completed: 2014
Client: Fogarty OÜ
Main Contractor: YIT Eesti
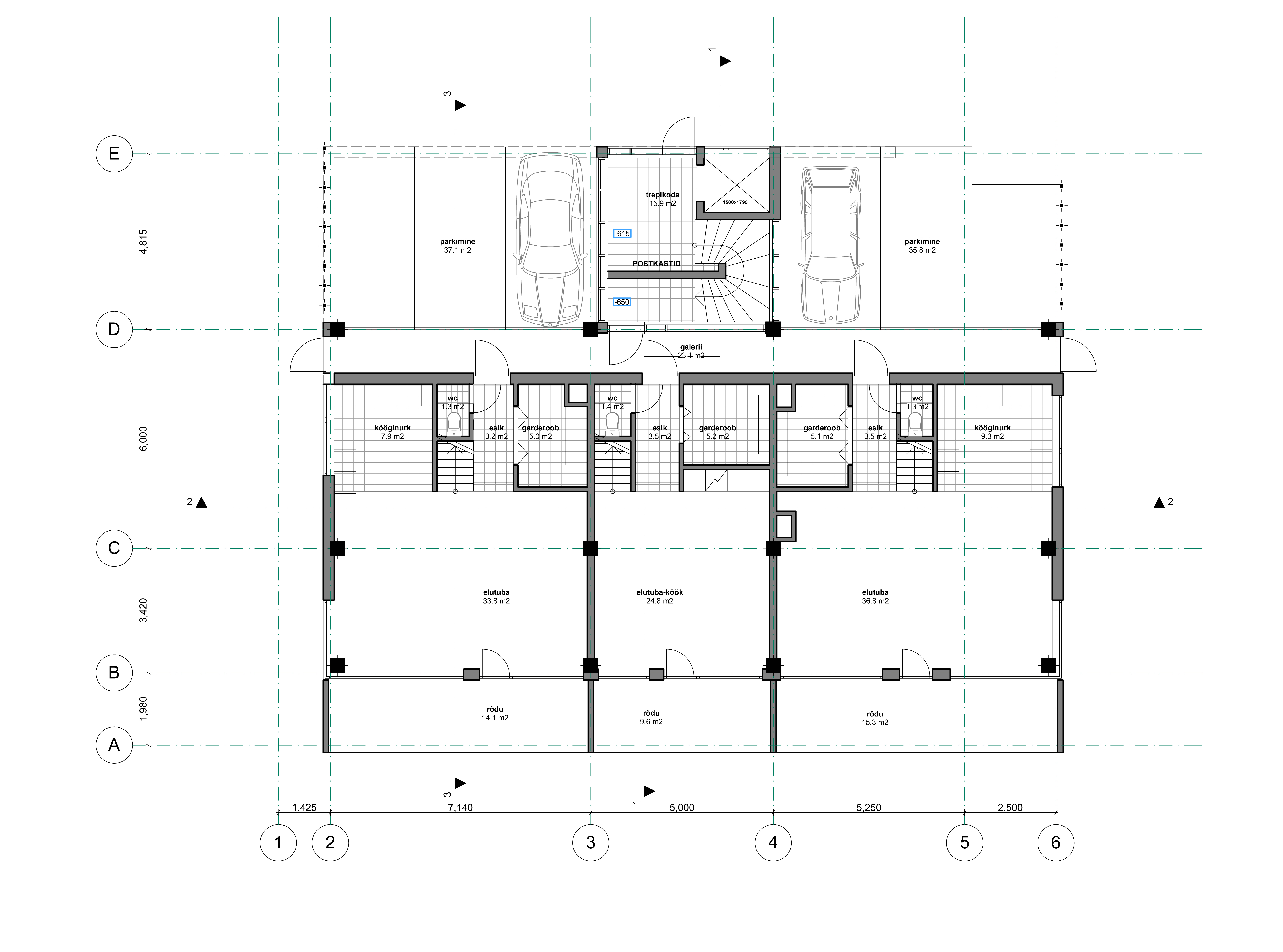
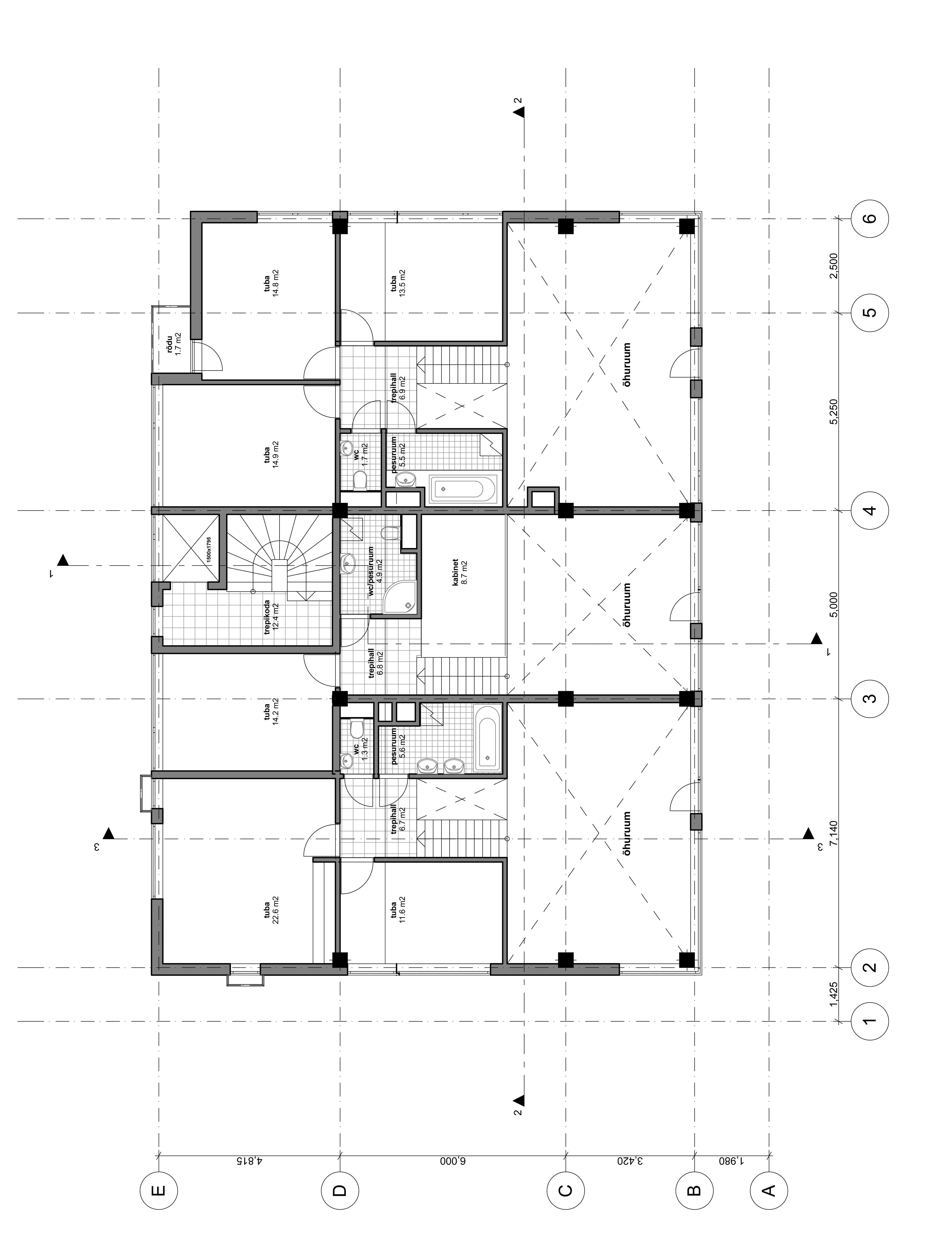
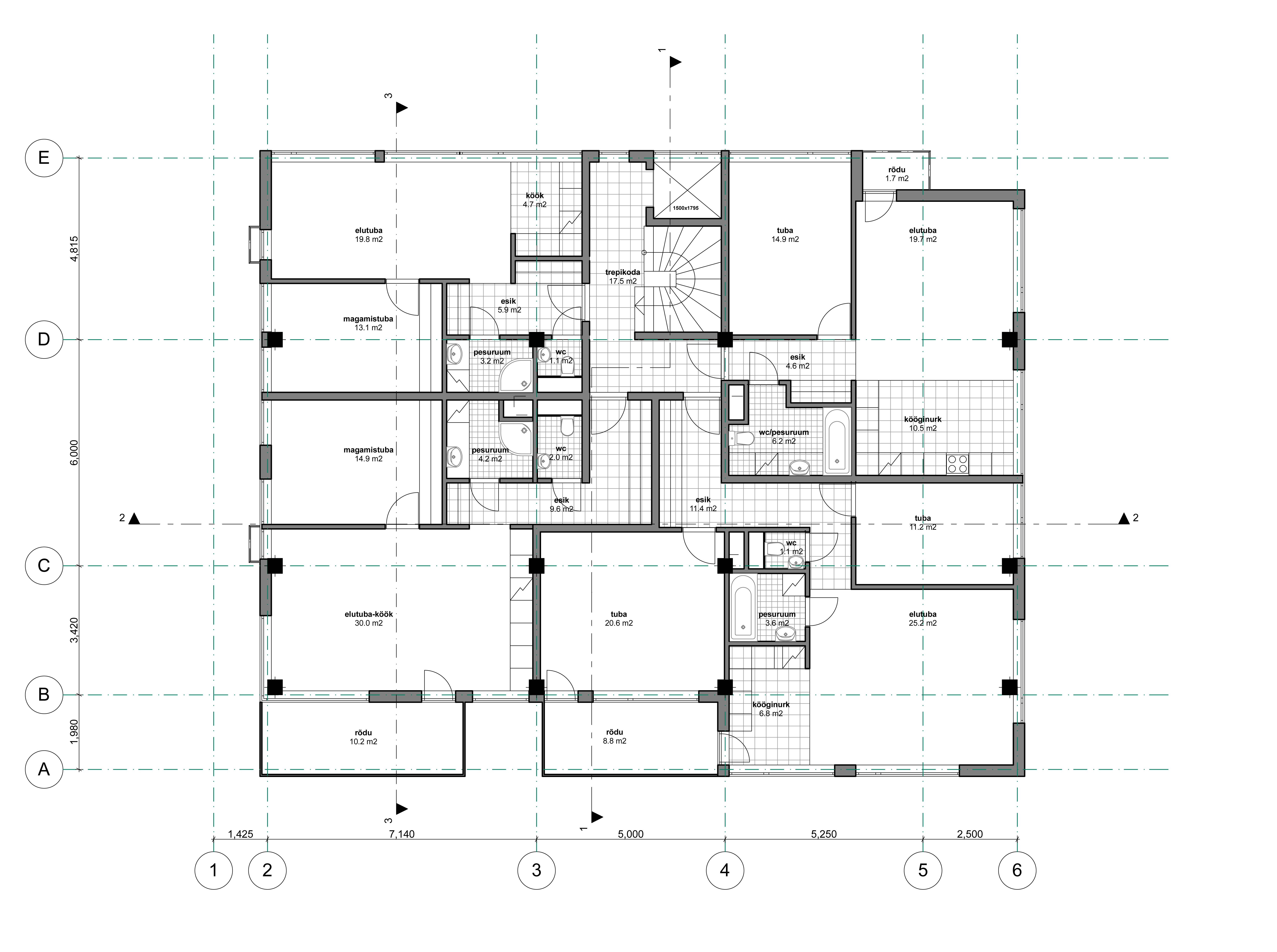
Apartments: 46