Keemia 15/17 Tallinnas, planeeringu kutsutud võistlus, 2012

Arhitektid: Rein Murula, Karl Koosa, Aleksei Tihhonov

Polüfunktsionaalse piirkonna tekkimiseks on planeeritava hoone esimesele korrusele kavandatud äripinnad. Mitme-sihtotstarbelised hooned on turvalisuse aspektist väga olulised, sest nii on tagatud inimeste kohalolek ja kontroll avaliku ruumi üle ööpäevaringselt.

Projekteeritud hoone moodustab plaaniliselt U-kujulise vormi, mis paikneb peafassaadiga krundi loodepiiril. U-kujulise põhiplaaniga hoone sisehoov avaneb kagu suunda. Sisehoovis paikneb lastemänguväljak.

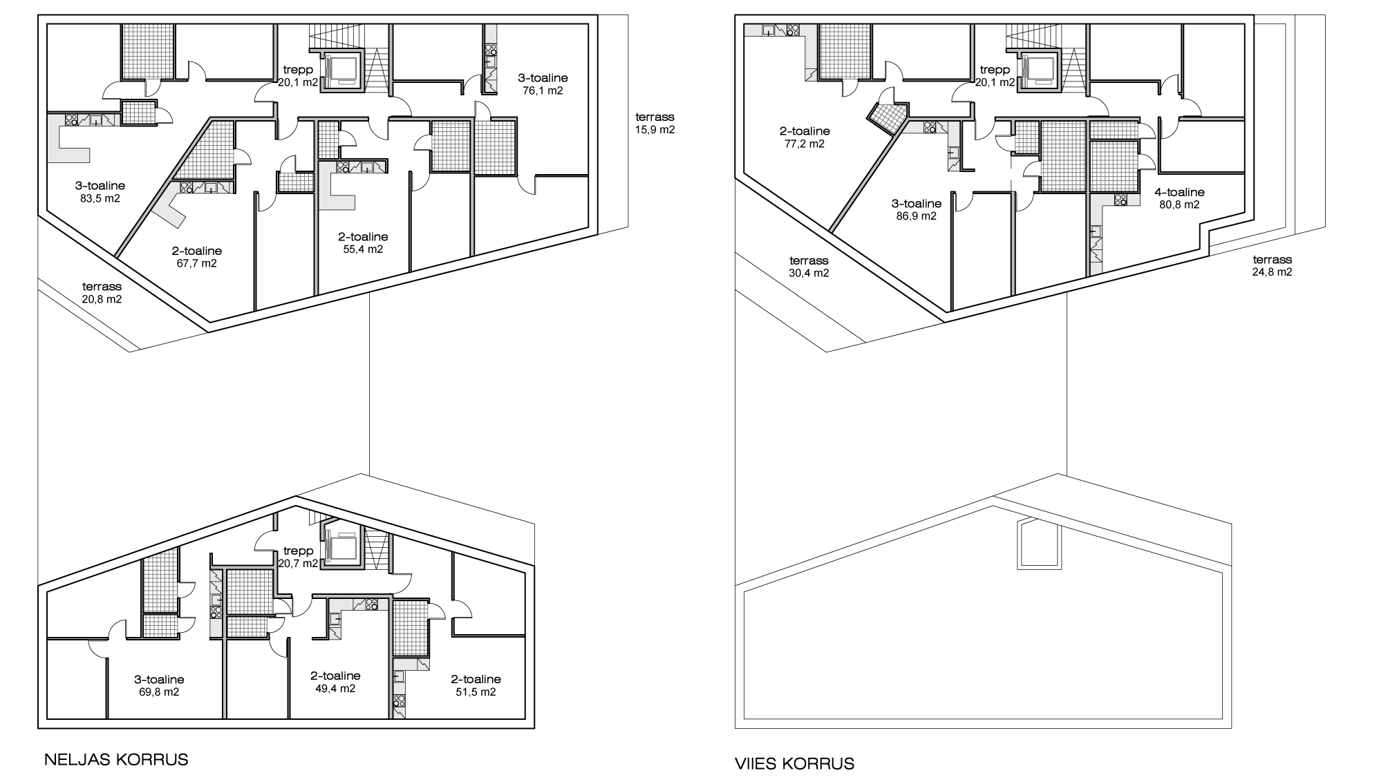
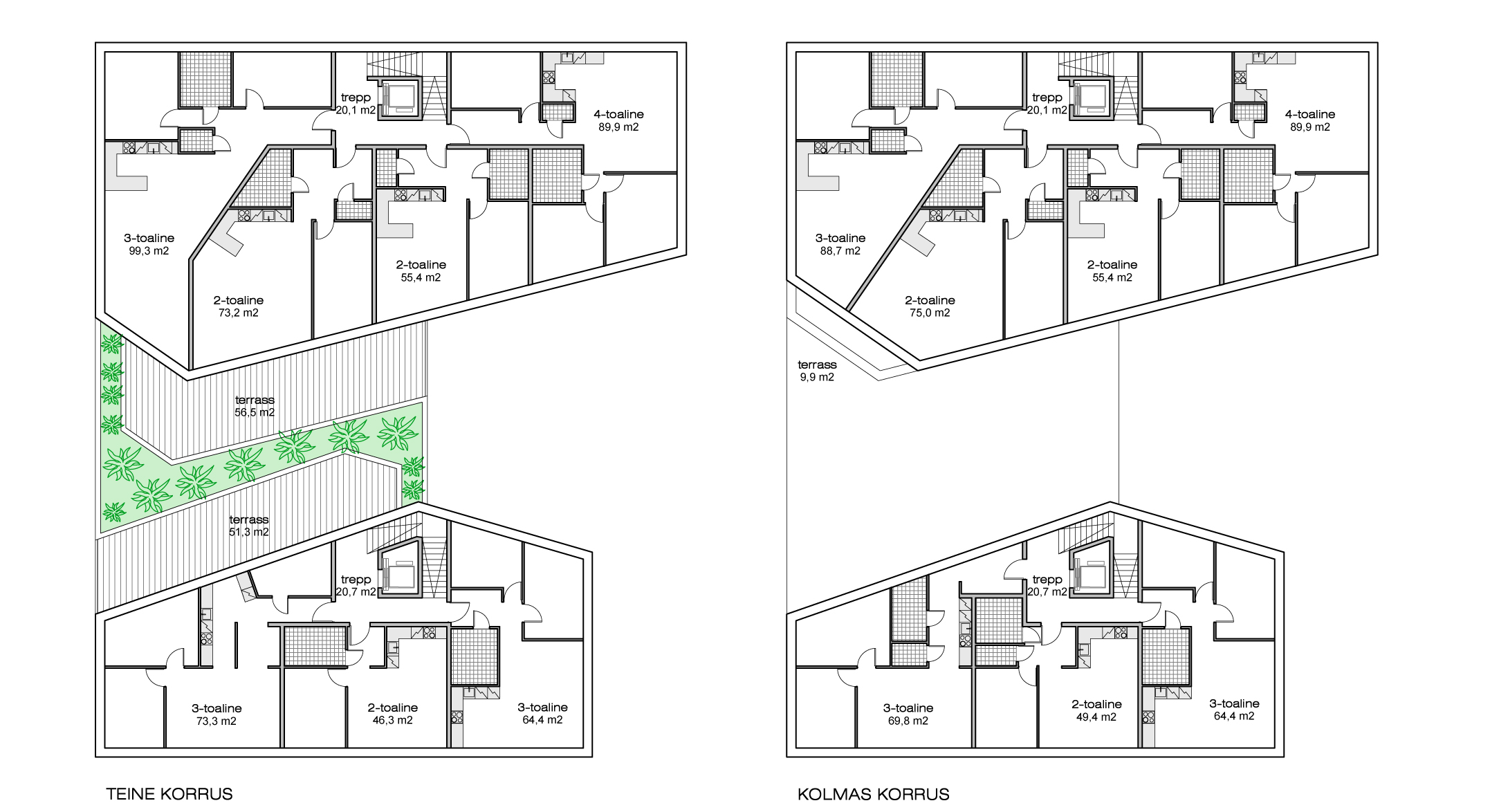
Projekteeritud hoone on ühe maa-aluse ja kuni kuue maapealse korrusega korterelamu. Hoonekompleks koosneb kolmest erineva kõrguse- ja funktsiooniga hooneosast. Üks kuuekorruseline ja üks neljakorruseline hooneosa on omavahel ühendatud ühe maa-aluse keldrikorruse- ja ühekorruselise maapealse hooneosaga.

Esimene, kõrgemaid hoonemahte ühendav, korrus on ettenähtud äriruumideks. Alates teisest korrusest paiknevad 2- … 4-toalised korterid. Osade korterite juurde kuuluvad avarad rõdud – terrassid. Nelja- ja kuuekorruselise hoonemahu sisehoovipoolsed murtud joonega fassaadid välistavad otsevaated akendest ning tagavad naaberhoonestusele vajaliku insolatsioonikestvuse.