Ärihoone Pikk 12 Pärnus, konkursitöö 2014, äramärgitud töö

Architects: Rein Murula, Karl Koosa, Aleksei Tihhonov, Erik Talvik

Arhitektuurse laheduse põhiidee on anda olemasolevale raudteehoonele eriline tähendus. Pakutud lahendus ei varja vana hoonet uue kaubaduskeskuse sisemusse vaid säilitab ja kasutab tema vormi uue lahenduse kujundamisel. Vana hoone kaldkatuse edasiarendus uue ärihoone vormikeeles on märgilise tähendusega loodavas linnaruumis. Peasissepääsu juures on osaliselt säilitatud raudteehoone vorm, avad on kaasajastatud ning täiendatud on välisviimistlust. Peab ju Pikk tn 12 hoone oluliselt kujundama antud ristmiku ruumilist mõju ning vaateid nii jõe- kui ka vanalinna suunalt. Loodame, et kirjeldatud lahendusega on piirkonna ajalugu raudteesõlmena kinnistatud uues arhitektuuris nii otseste kui kaudsete viidetega eelnenud aegadele.

Osaliselt on säilitatud raudteehoone ka kaubanduskeskuse siseruumides. Säilitatud ei ole mitte ainult müürid vaid on pakutud võimalus eksponeerida vana hoone katusekorrust ka uue keskuse laekonstruktsioonides. Katuse kaldpinnad on avatud siseruumis, mis rõhutaksid eriliselt koha iseloomu ning ajalugu, võimaldades üles ehitada väga omanäolise müügisaali.

Esimesele korrusele on paigutatud kaubanduspind koos abiruumidega ning pääs kohvikusse koos väikese baariruumiga, mis võiks olla kujundatud ajaloolises võtmes. Müügisaalis on maksimaalselt säilitatud raudteehoone ehituslik kehand, osaliselt müüritis kui katusekonstruktsioonid. Vanad ehituskonstuktsioonid rõhutaksid hoone kohalikku ja ajaloolist identiteeti ning looksid kordumatu müügisaali sisekujunduse. Selline lahendus erineks olulisest standartsetest kaubanduskeskustest, mis on levinud peaaegu kogu maailmas ning saanud halvas mõttes globaliseerumise tunnuseks. Teisel korrusel oleksid kaubanduskeskuse abiruumid ning kohviku põhisaal koos köögiga. Kohviku külastajate osa oleks osaliselt avatud kaubanduskesuse müügisaali läbi taastatud ärklikorruse ning selles paiknevate avade.

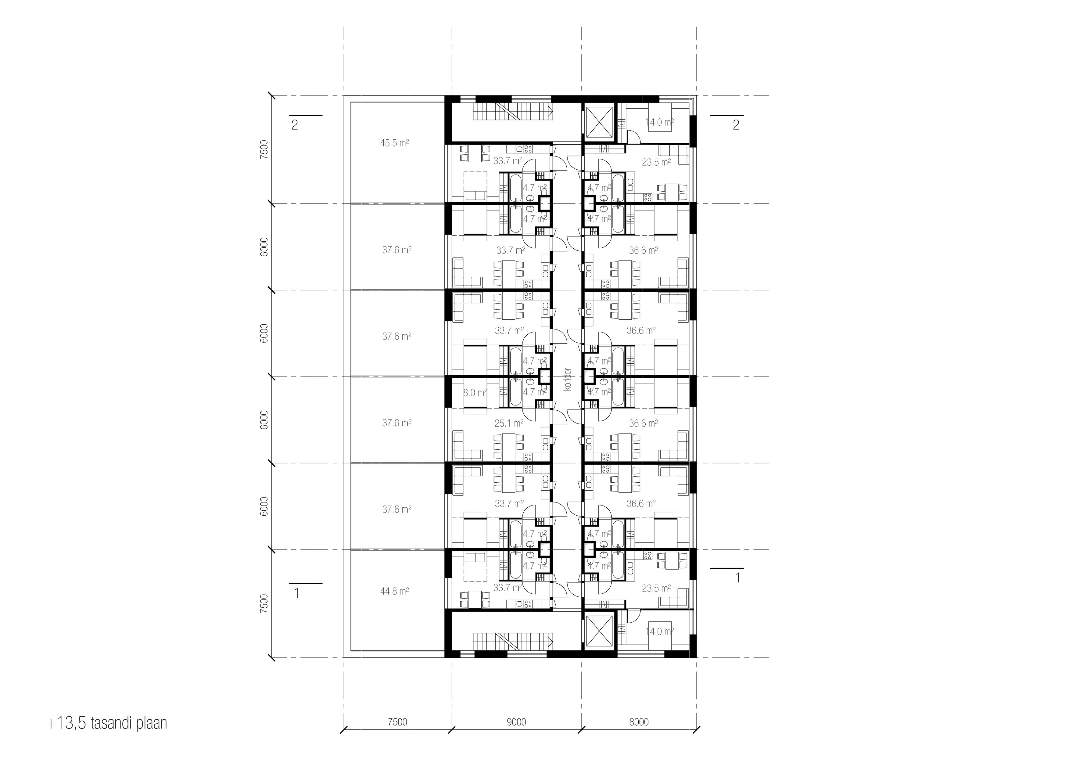
Müügisaali kohal on teisel ja kolmandal korrusel erinevad äripinnad kuhu pääseb hoone otstes paiknevatest trepikodadest koos liftidega. Teise korruse äripind on kahel tasapinnal, kolmanda korruse äripind on ühel tasandil. Hoone ülemistel korrustel on „city apartment” tüüpi külaliskorterid. Selline kett teenindab inimesi, kes soovivad peatuda pikema aja jooksul ning ei vaja hotelli täisteenidust. Analoogsed korterid on populaarsed firmade töö-esinduskorteriteks, mis võimaldavad töötajatel viibida antud kohas pikemalt. „City apartment” on samas siiski kõrgema teenindustasemega kui tavaline korter. Korteri välisseinas vastu koridori on teeniduskapp kuhu külastaja-elanik asetab prügi ning musta pesu. Samas ruumide regulaarset sisepuhastust ja muud hooldust ei ole.