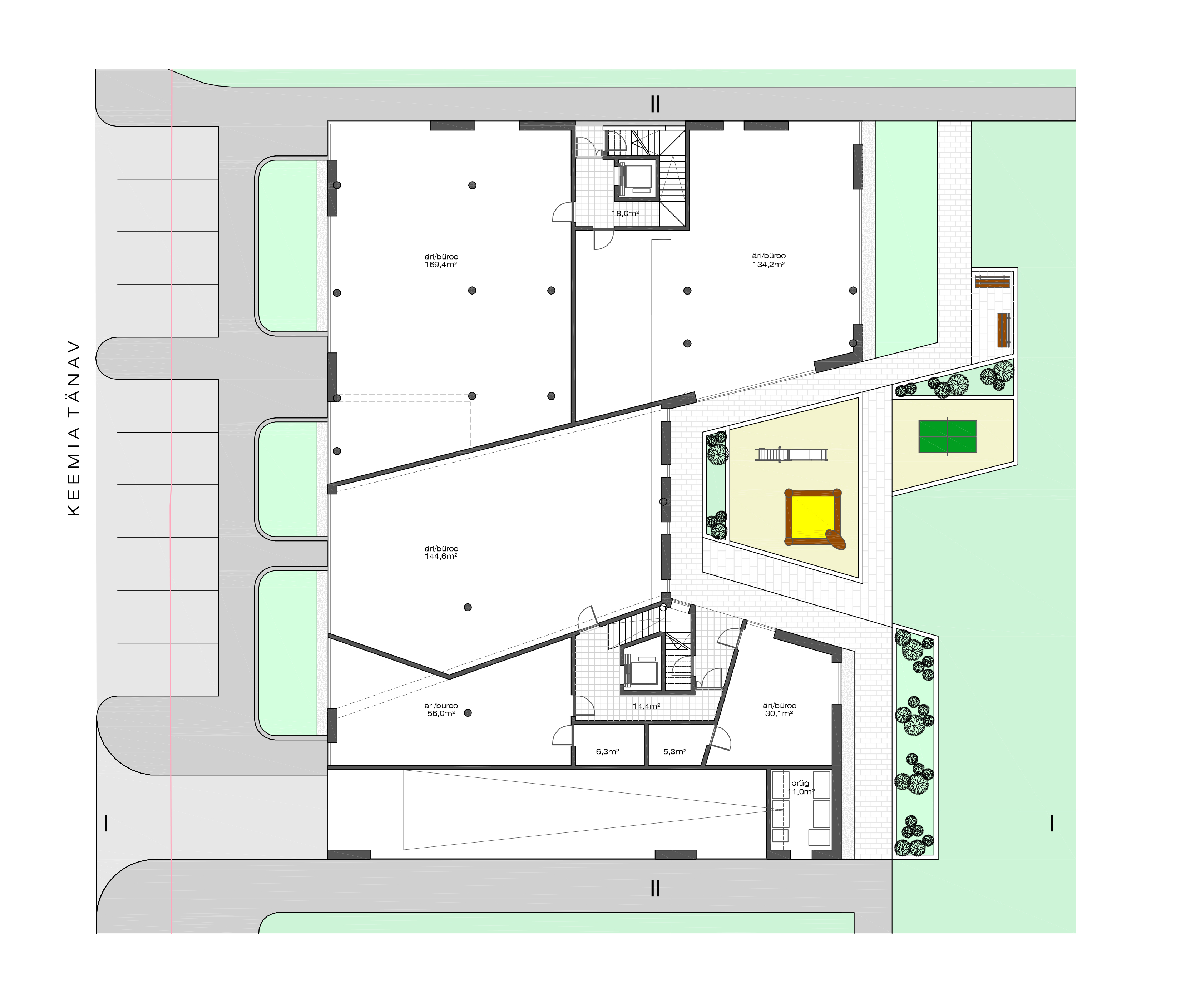
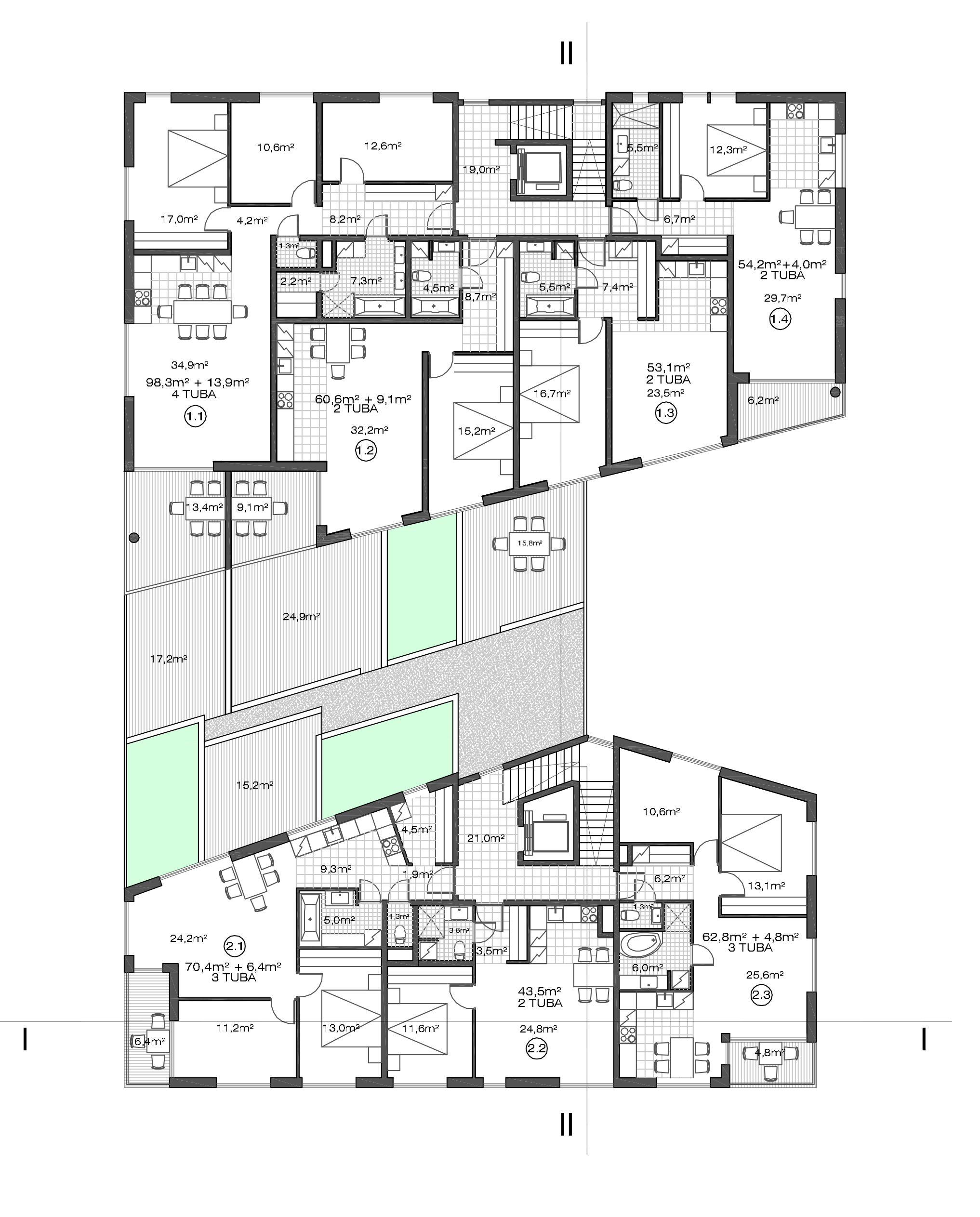
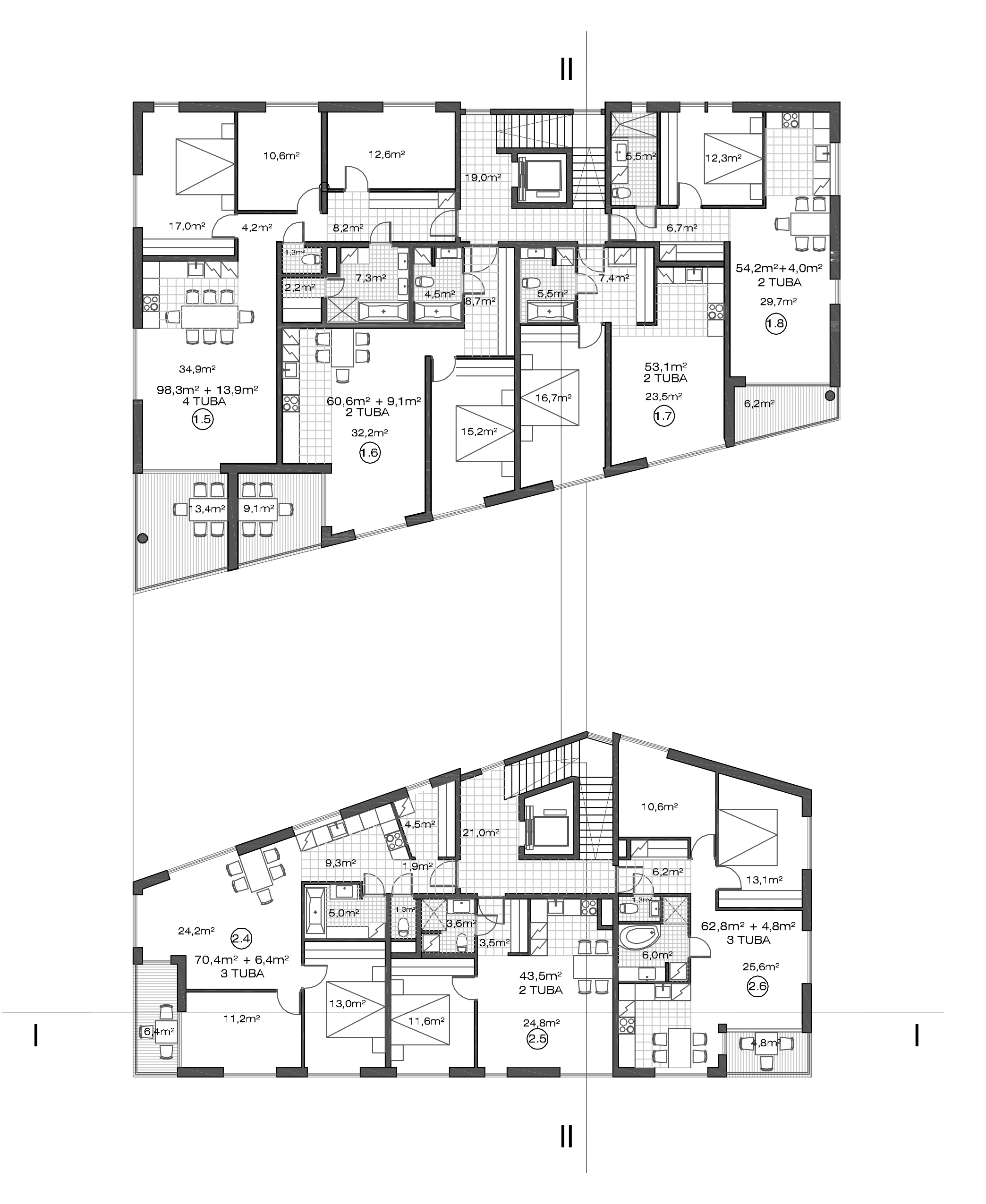
Apartment buildings at 15/17 Keemia Street in Tallinn, invited competition, 2015

Architects: Rein Murula, Karl Koosa, Aleksei Tihhonov