Eramu Aiatee 33 Tallinnas Meriväljal, 2018

Arhitektid: Rein Murula, Aleksei Tihhonov

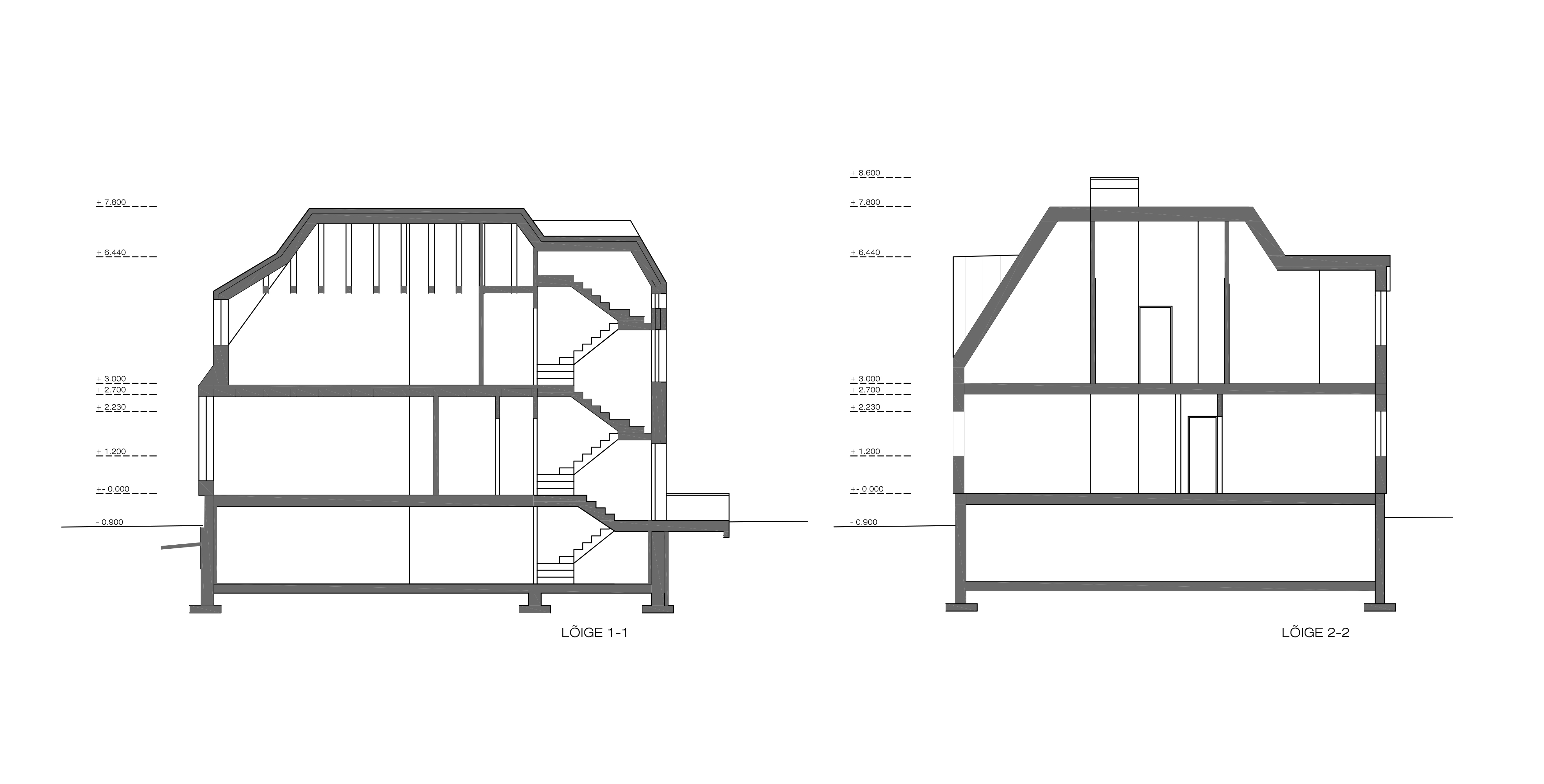
Arhitektuurne lahendus arvestab hoone olemasolevat valmisehitatud mahtu, mitte hoone algset projekti, mida ei teostatud. Põhilisi arhitektuurseid elemente ei realiseeritud projektijärgselt ning enamik arhitektuursetest elementidest terrassipiirded, akende originaalid jm pole säilinud. Kuna tegemist ei ole arhitektuurimälestisega, siis ei ole põhjendatud algse lahenduse kopeerimist kas algse projekti või algse teostatud lahenduse näol, kuna see tekitab autoriõigusliku probleemi (maja projekteerija surma-aasta on 1972). Hoone rekonstrueerimisel on arvestatud hoone ajaloolise asukohaga krundil, omaaegse kompaktse ülesehitusega ning räästa kõrgusega.

Arhitektuurne lahendus arvestab väga olemasoleva hoonega ning säilitab võimalikult palju olemasoleva hoone iseloomulikke jooni, samas püüdes lahendada ehitiseekspertiisis välja toodud probleeme nagu ebapiisav välisseinte soojapidavus, tubade kõrguste mittevastavus kehtivatele eluruumide nõuetele ning ehitustehniliselt komplitseeritud keldri süvendamine pinnasevee kõrge taseme tõttu. Kuna nende probleemide lahendamiseks on vajalik hoone kandekonstruktsioonide osaline asendamine ning võimalusel ka säilitamine, siis ei ole põhjendatud ka ajaloolise välisviimistluse taastamine. See taastatakse trepikoja osas, kuid ülejäänud hoone puhul on kombineeritud kaasaegne fassaadiviimistlus ja arhitektuurne keel olemasoleva hoone kompaktse mahuga ning mahulise kompositsiooniga, liigenduse ning avatäidete rütmiga.

Hoonestuse plaanilise ruumijaotuse projekteerimisel on lähtutud päikese liikumise suunast päeva jooksul, võimaldades päikese maksimaalset pääsu eluruumidesse. Avarad aknad on projekteeritud päiksepoolsetele fassaadidele säilitades olemasoleva fassaadi liigendatust ning olemasolevate akende asukohti. Esimeselt korruselt teisele korrusele viiva trepi asukohta ei muudeta ning trepi konstruktsiooni säilitatakse võimalikult suurel määral. Trepihalli esimesel korrusel säilib ajalooline sissepääs hoonesse, seda on ette nähtud kasutamiseks sissepääsuna teise korruse korterisse ning esimese korruse korteri abiväljapääsuks.