Äriruumidega elamukompleks Paldiski mnt 82b, c, d Tallinnas,
kutsutud võistluse eskiisprojekt, 2017

Asendiplaaniliseks kontseptsiooniks on loodusliku kõrghaljastuse säilitamine ning projekteeritud hoonestuse ja teede-juurdepääsude sidumine olemasoleva loodusliku keskkonnaga s.h. Mustjõe oja läänekaldal paiknevasse ehituskeeluvööndisse kujuneva pargialaga. Asendiplaaniline lahendus loob maksimaalse seose olemasoleva loodusega ning tagab hea kergliikluse ühenduse Kopli lahe rannaalaga, Tallinna ühe tihedama liiklusega põhimagistraali, Paldiski maantee ääres.

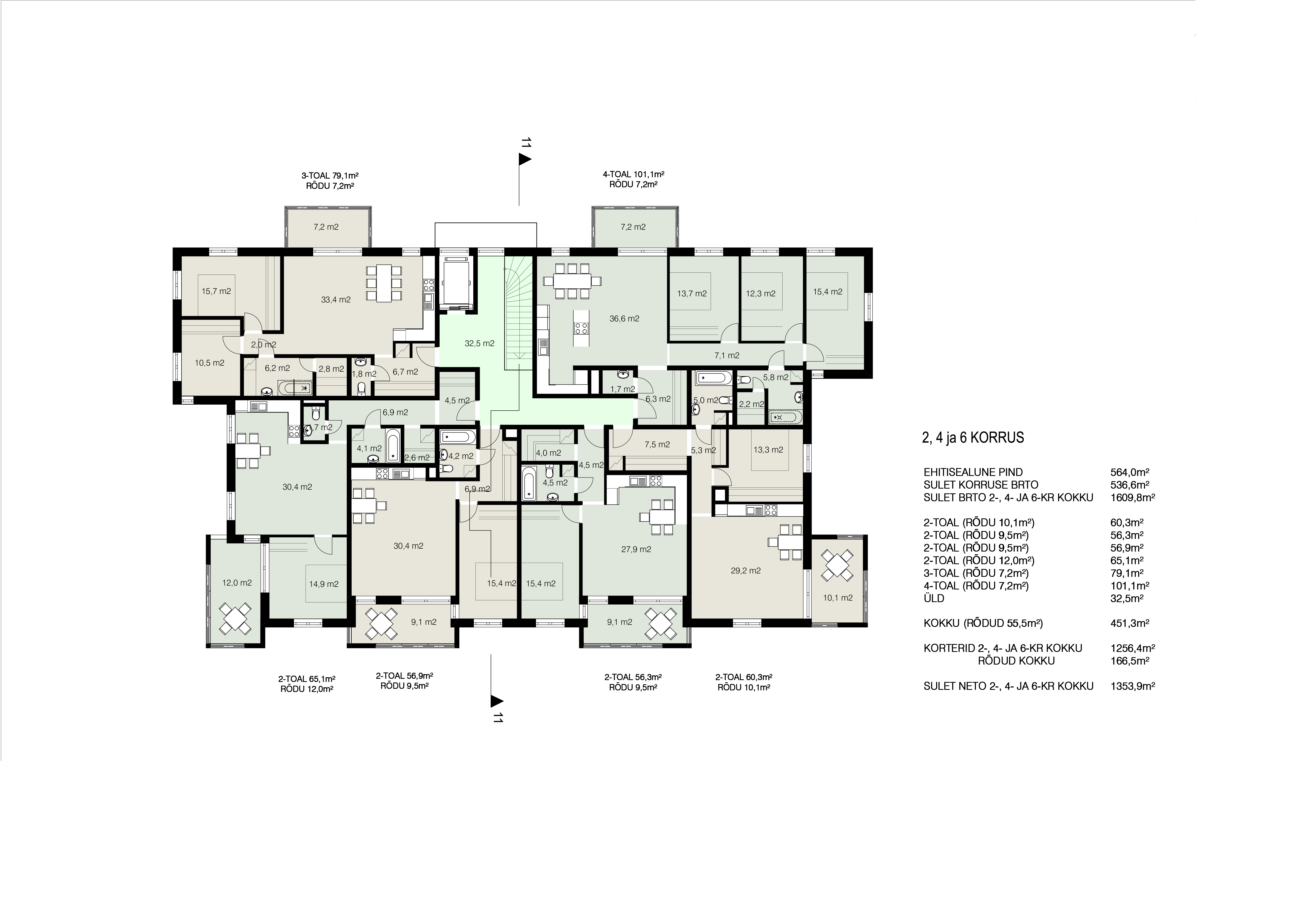
Kvartali üldiseks kujunduslikuks kontseptsiooniks on tervikliku hoonetegrupi loomine läbi ühtse hoonestustüpoloogia, arhitektuurse lahenduse ja viimistlusmaterjalide. Hoonete arhitektuurseks kontseptsiooniks on analoogse plaanilahendusega, ühe trepikojaga ja minimaalse üldkasutatava pinnaga korrusmajad. Korruse pind on maksimaalselt ära kasutatud kasuliku pinnana. Plaaniliseks kontseptsiooniks on korterite sidumine ümbritseva loodusliku keskkonnaga läbi avarate rõdude. Kõikide hoonete plaaniline kontseptsioon on analoogne, võimaldades vajadusel muuta plaanilahendust.

Kõik sissepääsud kergliiklusteedelt ja parklatest on kasutatavad vaegliikujate poolt, sisenemised hoonetesse on lahendatud ilma astmeteta. Juurdepääsudeni toovad kergliiklusteed ja sõiduteed on omavahel ohutult eristatud ning autode ja inimeste liiklus ei ole omavahel seotud. Kõikides hoonetes on korrustevahelised ühendused tagatud avara lifti- ja ühekäigulise trepiga. Arvestades Paldiski maantee tihedat autoliiklust ja vajadust paigutada kvartalisse nõutud hulk parkimiskohtasid, on valdavas osas hoonete esimesed korrused projekteeritud autode parkimisaladena, koos panipaikade- ja tehnilise ruumidega.

Alates teisest korrusest paiknevad kõikidel hoonetel korterid (2- … 4-toalised). Kõikidele korteritele on projekteeritud avarad kaetud rõdud (rõdude sügavus vähemalt 1,5m), mis loovad siseruumile ülemineku poolavatud välisruumi, tagades sise- ja välisruumi omavahelise seose.